Introduction
Last month, we introduced you to radiated emissions pre-compliance testing for commercial, industrial, and medical products. This month, we’ll show you the differences in making the measurements for automotive modules and military products. Next month, we’ll describe some pre-compliance software that will help automate these manual measurements.
You’ll want to refer to the general test equipment setups, gain and loss calculations, and test procedures described last month. Additional details may be found in References 1 and 2.
Most automotive and military EMC tests for components, modules, or smaller products are tested in a similar environment to where the product is to be installed. This is a major difference in consumer testing in that we’re less concerned about interference to established communications and broadcast (TV, radio, aircraft, land mobile, and mobile phone) and more concerned with how a product behaves in the environment it’s designed for (automotive cockpits, military vehicles, shipboard, spacecraft, and military or commercial aircraft.
In other words, we’re not so much interested in far-field emissions or interference (3m or 10m test distance) but more interested in whether a product is compatible with other equipment installed close by and located more in the near field (1m test distance).
Pre-Compliance Testing Radiated Emissions to the Automotive Standard (CISPR 25)
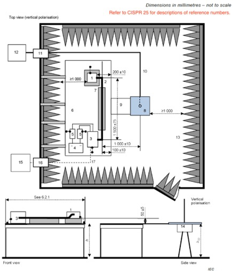
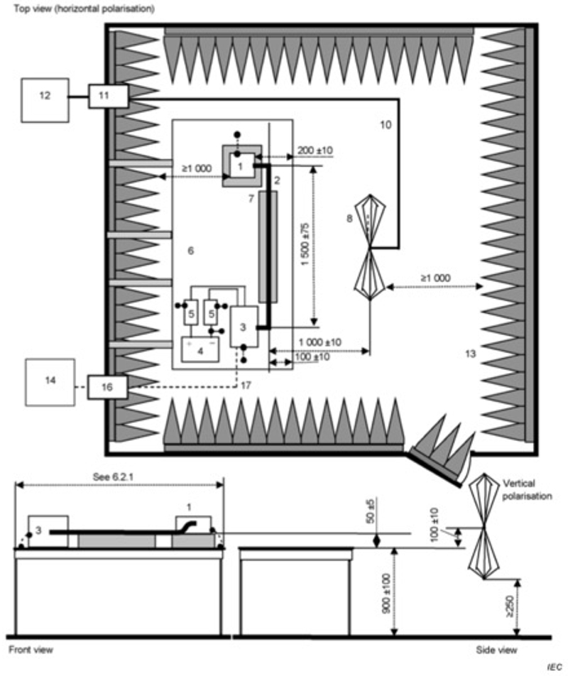
Automotive emissions testing for modules is performed in a very similar manner to MIL-STD-461. Therefore, the test is performed on a metal tabletop with the power cable running 5cm above the metal plane and stretched out to a 2m length (Figures 1 and 2). Frequencies tested depend on the test Class of the standard and peak detection used; however, most modules are tested to Class 5 limits. Refer to CISPR 25 for the test setup for 300 MHz to 2.5 GHz (not pictured below).


Set up your spectrum analyzer in a way that is similar to what was explained the previous month. I prefer setting the vertical units from the default dBm to dBμV so the displayed numbers are positive. Then, adjust the Reference Level for even increments along the vertical axis. This is also the same unit used in the test limits of the MIL-STD-461 standard. I also like to set the horizontal scale from linear to log (if possible) so frequencies are easier to read. All the measurements must account for gains and losses in the measurement system. Refer to the previous month for details.
The resolution bandwidth setting of the spectrum analyzer depends on the frequency bands being tested. For radiated emissions in the range of 30 to 2500 MHz, this should be set to 100 or 120 kHz. The video bandwidth should be set at least three times the resolution bandwidth. A broadband preamplifier may be used to achieve at least a 6-dB noise floor below the test limits. There are separate limits for peak, quasi-peak, and average detection. For details, refer to Figure 3 and CISPR 25 (or the equivalent Euro Norm, EN 55025).

Temporary setups for troubleshooting or pre-compliance purposes may be set up on a workbench with aluminum foil or Tekbox’s roll-up ground plane (model TBGP, Reference 3) to simulate the ground plane. The nominal 12.6V power supply (automobile battery) and a pair of LISNs should be placed at one end of the table, with the power line stretched out 2m to the load simulator (and spaced 5cm above the ground plane).
Figures 4 and 5 show typical CISPR 25 test setups for automotive module testing.


Pre-Compliance Testing Radiated Emissions According to RE102 (MIL-STD-461)
Pre-compliance testing to the military MIL-STD-461 is very similar to automotive testing to CISPR 25, in that both use a 1m test distance between the antenna and equipment (or module) under test. Both use a metal tabletop with the power cable running 5cm above the metal plane and stretched out to 2m in length. LISNs are used for both the positive and negative (or AC) power leads. See Figure 6 for a diagram of the test setup recommended for pre-compliance testing.

The frequency range 10 kHz to 30 MHz uses the rod antenna, 30 to 300 MHz uses the biconical and 300 to 1000 MHz uses the double ridge horn antenna. However, for pre-compliance testing, a shorter log-periodic antenna may be substituted for the double ridge horn, which is fairly expensive.
Set up your spectrum analyzer the same way as in CISPR 25 above. The resolution bandwidths should be set according to Table II in MIL-STD-461 (Figure 7). For radiated emissions, the RBW will be set between 10 kHz and 1 MHz, depending on the band scanned. The standard calls for peak detection. These bandwidths are specified at the 6 dB down points for the overall selectivity curve of the receivers.
Note: Video filtering shall not be used to bandwidth limit the receiver response. If a controlled video bandwidth is available on the measurement receiver, it shall be set to its greatest value. Larger receiver bandwidths may be used; however, they may result in higher measured emission levels. No bandwidth correction factors shall be applied to test data due to the use of larger bandwidths. (Excerpt from MIL-STD-461G)

Figure 8 shows one of my early MIL-STD-461 test setups for measuring radiated emissions from some aerospace ground equipment. I used heavy-duty aluminum foil taped down to a conference table. Although, I was using a commercial bi-log antenna, the test results still provided me some confidence there were no “red flags” apparent. The product was later tested and passed.

Figure 9 shows a typical MIL-STD-461 pre-compliance test setup with product under tests removed for the picture. Copper is used on the tabletop.

Dealing with Ambient Transmissions
This section is repeated from last month because it is so important. One problem you’ll run into immediately when testing radiated emissions outside of a shielded room is the number of ambient signals from sources like FM and TV broadcast transmitters, cellular telephones, and two-way radio. This is especially an issue when using external antennas.
I’ll usually run a baseline plot on the analyzer using “Max Hold” mode for a couple of minutes to build up a composite ambient plot. Then, I’ll activate additional traces for the actual measurements. For example, I often have at least two plots or traces on the screen: the ambient baseline and the actual measurement. It greatly helps to become familiar with your area’s RF spectrum usage.
It’s also a bonus if you already know the top harmonic frequencies because it’s easier to identify product emissions from the ambient noise. I often “zero in” by reducing the frequency span on a high harmonic while performing a measurement.
Fortunately, there are three ways around this:
- In most cases, you’ll observe a range of product emissions in a harmonic relationship. Very often, these harmonics are created from the same source and if one or more are masked by ambient signals, then working on the others that are more visible will generally bring the whole batch down.
- In some cases, there will be a critical harmonic masked by an ambient transmitter. A common example is a 100 MHz harmonic hidden underneath a strong FM broadcast station at the 99.9 MHz channel. In this case, I’ll try reducing the resolution bandwidth from 100 or 120 kHz down to as little as 1 kHz or less. This often “filters out” the modulation from the FM station, allowing you to observe the hidden harmonic. This also presumes the harmonic is an unmodulated continuous wave (CW) signal. Just be sure reducing the RBW doesn’t also reduce the harmonic amplitude. If your harmonic is modulated, this may not work, so you could try selecting a higher related harmonic, as in (1) above.
- Move your testing well away from urban transmitters (easier said than done these days) or test in the early morning hours.
Remember that strong nearby transmitters can affect the amplitude accuracy of the measured signals, as well as create mixing products that appear to be harmonics, but are really combinations of the transmitter frequency and mixer circuit in the analyzer. You may need to use an external bandpass filter at the desired harmonic frequency to reduce the effect of the external transmitter. An example would be an FM broadcast band “stop band” filter.
Summary
Very few companies today can afford permanent EMC test facilities, and I hope this article has given you some ideas for performing pre-compliance testing of automotive modules and MIL-STD-461 pre-compliance testing at your own facility. While ambients are particularly difficult to deal with and can hide important harmonics, it is still possible to use these temporary sites for troubleshooting and a certain level of pre-compliance testing. This could save you thousands of dollars in wasted testing at your local compliance test facility.
Making these manual measurements for every dominant harmonic can be tedious at best. Next month, I’ll cover some pre-compliance software that will help speed up your test and analysis.
References
- Wyatt, EMC Troubleshooting Trilogy, Volume 2, https://www.amazon.com/stores/Kenneth-Wyatt/author/B00SNQ1LJ2
- Wyatt, Evaluating Reduced-Size EMI Antennas – Part 1, EDN, https://www.edn.com/evaluating-reduced-size-emi-antennas-part-1/
- Tekbox TBGP Roll-Up Ground Plane, https://www.tekbox.com/product/tbgp-roll-up-ground-plane/
